Продается дом, 105 кв.м., 1/1 эт
| Стоимость | 5 000 000 |
|---|---|
| Комнат в доме | 2 |
| Категория земли | Садоводство |
| Тип комнат | раздельные |
| Тип парковки | Открытая во дворе |
| Ремонт | Дизайнерский |
| Этаж | 1 |
| Категория земли Avito | Садовое некоммерческое товарищество (СНТ) |
| Способ связи avito | По телефону и в сообщениях |
| Материал стен (Авито дома) | Брус |
| Тип отопления cian | Электрическое |
| Водоснабжение avito | Скважина |
| Канализация avito | Септик |
| Тип строения | Дом |
| Площадь, кв.м. | 105 |
| Площадь участка, сот | 6 |
| Этажность | 1 |
| Материал стен | Брус |
| Населенный пункт | Виллози Деревня |
|---|
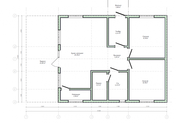
Дом «Матрица 107» для постоянного проживания с баней и открытой террасой!
Тёплый, энергоэффективный дом 107 м² для круглогодичного проживания. Всё продумано для комфортной жизни за городом: от тамбура и котельной до собственной бани и места для летнего отдыха.
Планировка для жизни:
· Собственная баня/сауна в доме:
Парная 3.41 м² — релакс после рабочего дня и здоровье круглый год без лишних поездок.
· Большая открытая терраса 24 м²:
Идеальное место для летнего отдыха, завтраков на свежем воздухе и вечерних посиделок с шашлыком. Прекрасный вид и единение с природой.
· Просторная кухня-гостиная 25.39 м²:
Сердце дома, где собирается вся семья. Места хватит для большой кухонной мебели и зоны отдыха с диваном.
· Две изолированные спальни по 12.18 м²:
Уютные и тихие комнаты для родителей и ребенка. В каждой поместится полноценная кровать и шкаф.
· Всё для ПМЖ: есть котельная (2.56 м²)с котлом, тамбур (4.44 м²) — защита от холода, санузел (4.44 м²).
Идеально для:
· Постоянного проживания небольшой семьи.
· Ценителей русской бани и отдыха на собственном участке.
· Тех, кто ищет тёплый и экономичный дом без лишних хлопот.
- фундамент- ж/б сваи 150/150/3000
- обвязка : 150/150 сухая строганная доска камерной сушки с септированием
- сетка от грызунов
- супердиффузионная мембрана ondutiss PRO AM 130
- лаги пола: доска камерной сушки 45/195
- утепление пола 300мм
- каркас с шагом стоек 600мм из сухой строганной доски камерной сушки 45/145
- стропила: доска камерной сушки 45/145 с перекрёстным утеплением (общее утепление 200мм)
- межкомнатные перегородки 150мм либо 100мм с шумоизоляцией
- пароизоляция с отсечением наружных стен ondutiss smart D
- проклейка швов мембраны и пароизоляции скотчем isover paranet
- утеплитель isover тёплый дом плита (610мм)
- металлочерепица M35 Monterra (цвет на выбор)
- снегозадержатели по периметру крыши
- водосточная система (цвет на выбор)
- наружная отделка : сайдинг (имитация бруса, фальц, фиброцемент является дополнительной опцией)
- наличники на окна, углы, свесы крыши, торцы из планкена высшего сорта с пропиткой маслом в любой цвет. Монтаж с зазором 3 мм
- терраса: все деревянные элементы с пропиткой маслом в 2 слоя.
- полы :террасная доска ель 20/145
- ограждение террасы (форма на выбор)
- лестница (времянка)
- внутренняя лестница : ель высшего сорта с пропиткой (в случае наличия второго этажа)
- окна melke 6 камер профиль, 2ух камерный стеклопакет
- отливы на окна 150мм( цвет на выбор)
- цокольные панели u-plast кирпич (цвет на выбор)
- отливы на цоколь (70мм цвет на выбор)
- подоконники белые 150мм
- сетки москитные (доп опция)
- котельная:
- точка подключения стиральной машины
- трап с сухим затвором (страховочный)
- коллектора горячего и холодного водоснабжения на нужное количество выводов
- водонагреватель на 105 литров
- фильтр 0.5 микрон
- котёл Baxy двухконтурный
- коллектор тёплого пола( рассчитывается согласно площади помещений. Не более 60 метров трубы на контур)
- на кухне: выполнены выводы и подача воды для раковины, посудомойки
- санузел
- керамогранит на стенах и полу ( с гидроизоляцией)
- углы в санузле с герметизацией( в цвет затирки)
- душевой поддон с трапом 600мм (выполняется с бортом, отделан керамогранитом)
- душевая стойка с тропическим душем
- унитаз с инсталляцией (кнопка в стене, цвет на выбор)
- зеркало с подсветкой
- раковина с тумбой
- смеситель
- потолки натяжные (запас точек освещения в 2 раза от рекомендованных производителем)
- двери межкомнатные влагостойкие с антивандальным покрытием
- ручки и завертки на выбор
- дверь входная с терморазрывом
- стены: имитация бруса 20мм с покраской в 2 слоя (цвет на выбор)
- наличники , доборы и прочее с покраской
- плинтус (цвет на выбор)
- стяжка пола 6-10см
- трубы тёплого пола pex-a
- напольное покрытие керамогранит (на выбор)
- скважина до 35 метров ( шнековое бурение)
- вся автоматика для скважины
- завод воды в дом с обязательной укладкой греющего кабеля не менее 5 метров
- септик гринсток 2 м³ (станция биологической очистки как доп опция)
Ваш выбор : дом "Колпакофф- Матрица 107"
Стоимость за наличный расчёт:
Комплектация " теплый контур" – 4 000 000 руб.
Комплектация " люкс"- 5 000 000 руб.
Комплектация "Колпакофф"- 5 500 000 руб.
Стоимость В ИПОТЕКУ:
Комплектация " люкс"- 6 000 000 руб.
Комплектация "Колпакофф"- 6 600 000 руб.











