Продается дом, 93 кв.м., 2/2 эт
| Стоимость | 5 200 000 |
|---|---|
| Комнат в доме | 2 |
| Категория земли | Садоводство |
| Тип комнат | раздельные |
| Тип парковки | Открытая во дворе |
| Ремонт | Дизайнерский |
| Этаж | 2 |
| Категория земли Avito | Садовое некоммерческое товарищество (СНТ) |
| Способ связи avito | По телефону и в сообщениях |
| Материал стен (Авито дома) | Брус |
| Тип отопления cian | Электрическое |
| Водоснабжение avito | Скважина |
| Канализация avito | Септик |
| Тип строения | Дом |
| Площадь, кв.м. | 93 |
| Площадь участка, сот | 6 |
| Этажность | 2 |
| Материал стен | Брус |
| Населенный пункт | Виллози Деревня |
|---|
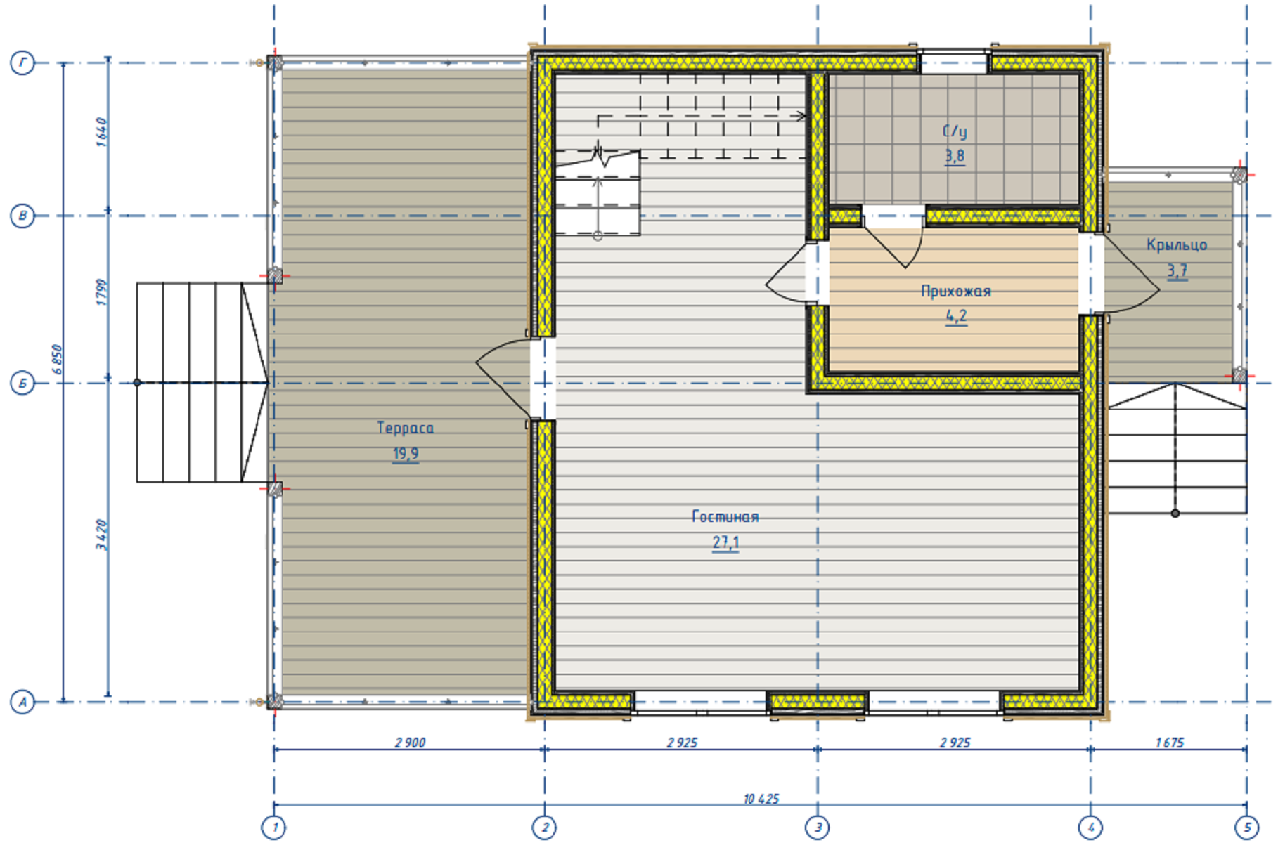
Дом «Легенда 93» предназначен для постоянного проживания!!
Очень популярная модель каркасного дома, подобных построено более 200 зданий.
1 санузел - душевая с тропическим душем, инсталляция, раковина с тумбой, зеркало.
2 санузел- ванная, унитаз, раковина с тумбой, зеркало.
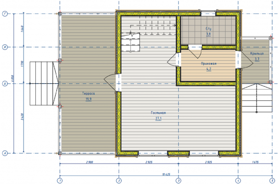
Большая кухня-гостиная 29м² с отдельным выходом на большую террасу 19м² , панорамные окна залог большого объёма натурального света.
Вторая терраса 4 м² .
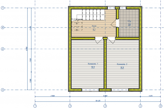
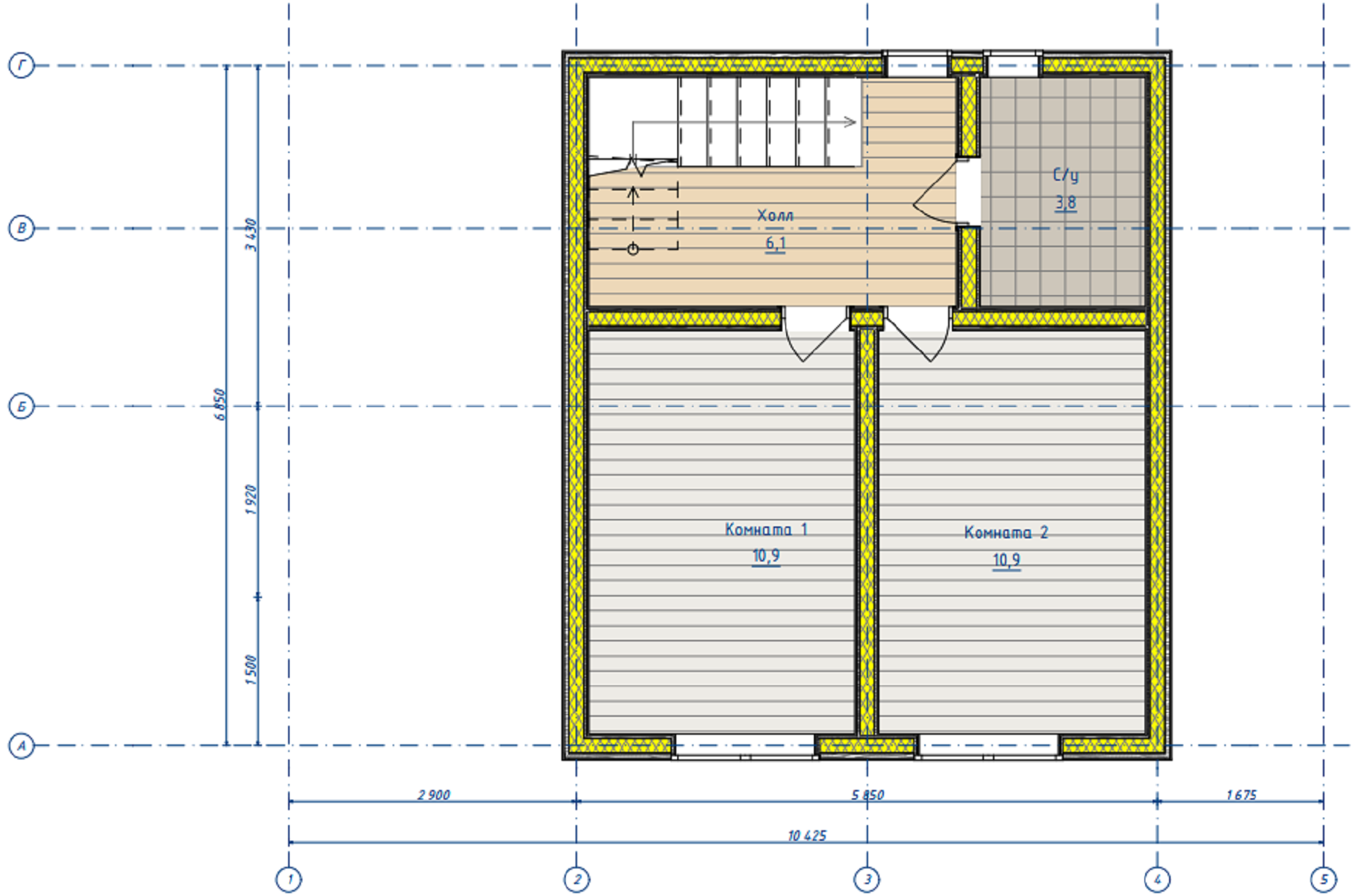
2 удобные спальни на втором этаже по 12 м². Отделка имитацией бруса с покраской. Натяжные потолки с большим количеством точек освещения. Лестница на второй этаж сделана на заказ. На полах ламинат 33ий класс. Влагостойкие двери с антивандальным покрытием. Входная дверь с терм разрывом 11.5 см. По периметру установлена иллюминация свесов и террас, освещает ночью весь участок. Канализация от гринсток' разведена и подключена. Собственная скважина 40 метров с питьевой водой Бесплатно и навсегда!
Дизайнерские конвекторы под каждым окном. В прихожей и санузлах установлен подогрев полов ! В доме ооочень тепло!
Горячая и холодная вода разведена по дому, предусмотрены все подключения (стиральная машина, плита, посудомойка,)
В доме 5 мест установки больших шкафов для хранения вещей.
В доме очень много розеток (19 только на кухне)
Дом в обязательном порядке проходит проверку тепловизором и аэродверью!
- фундамент- ж/б сваи 150/150/3000
- обвязка : 150/150 сухая строганная доска камерной сушки с септированием
- сетка от грызунов
- супердиффузионная мембрана ondutiss PRO AM 130
- лаги пола: доска камерной сушки 45/195
- утепление пола 300мм
- каркас с шагом стоек 600мм из сухой строганной доски камерной сушки 45/145
- стропила: доска камерной сушки 45/145 с перекрёстным утеплением (общее утепление 200мм)
- межкомнатные перегородки 150мм либо 100мм с шумоизоляцией
- пароизоляция с отсечением наружных стен ondutiss smart D
- проклейка швов мембраны и пароизоляции скотчем isover paranet
- утеплитель isover тёплый дом плита (610мм)
- металлочерепица M35 Monterra (цвет на выбор)
- снегозадержатели по периметру крыши
- водосточная система (цвет на выбор)
- наружная отделка : сайдинг (имитация бруса, фальц, фиброцемент является дополнительной опцией)
- наличники на окна, углы, свесы крыши, торцы из планкена высшего сорта с пропиткой маслом в любой цвет. Монтаж с зазором 3 мм
- терраса: все деревянные элементы с пропиткой маслом в 2 слоя.
- полы :террасная доска ель 20/145
- ограждение террасы (форма на выбор)
- лестница (времянка)
- внутренняя лестница : ель высшего сорта с пропиткой (в случае наличия второго этажа)
- окна melke 6 камер профиль, 2ух камерный стеклопакет
- отливы на окна 150мм( цвет на выбор)
- цокольные панели u-plast кирпич (цвет на выбор)
- отливы на цоколь (70мм цвет на выбор)
- подоконники белые 150мм
- сетки москитные (доп опция)
- котельная:
- точка подключения стиральной машины
- трап с сухим затвором (страховочный)
- коллектора горячего и холодного водоснабжения на нужное количество выводов
- водонагреватель на 105 литров
- фильтр 0.5 микрон
- котёл Baxy двухконтурный
- коллектор тёплого пола( рассчитывается согласно площади помещений. Не более 60 метров трубы на контур)
- на кухне: выполнены выводы и подача воды для раковины, посудомойки
- санузел
- керамогранит на стенах и полу ( с гидроизоляцией)
- углы в санузле с герметизацией( в цвет затирки)
- душевой поддон с трапом 600мм (выполняется с бортом, отделан керамогранитом)
- душевая стойка с тропическим душем
- унитаз с инсталляцией (кнопка в стене, цвет на выбор)
- зеркало с подсветкой
- раковина с тумбой
- смеситель
- потолки натяжные (запас точек освещения в 2 раза от рекомендованных производителем)
- двери межкомнатные влагостойкие с антивандальным покрытием
- ручки и завертки на выбор
- дверь входная с терморазрывом
- стены: имитация бруса 20мм с покраской в 2 слоя (цвет на выбор)
- наличники , доборы и прочее с покраской
- плинтус (цвет на выбор)
- стяжка пола 6-10см
- трубы тёплого пола pex-a
- напольное покрытие керамогранит (на выбор)
- скважина до 35 метров ( шнековое бурение)
- вся автоматика для скважины
- завод воды в дом с обязательной укладкой греющего кабеля не менее 5 метров
- септик гринсток 2 м³ (станция биологической очистки как доп опция)
Стоимость за наличный расчёт:
Комплектация " теплый контур" – 4 400 000 руб.
Комплектация " люкс"- 5 200 000 руб.
Комплектация "Колпакофф"- 5 600 000 руб.
Стоимость В ИПОТЕКУ:
Комплектация " люкс"- 6 240 000 руб.
Комплектация "Колпакофф"- 6 720 000 руб.
Хотите узнать стоимость и сроки строительства вашего дома? Звоните — обсудим ваш проект и сделаем индивидуальный расчёт!
https://dzen.ru/video/watch/6568d7a5649b955cd3effa35?





















































































